Montpelier

$547,900.00*
  • 4797 Sq. Ft.
  • 4 Bedrooms
  • 3.5 Bath
NOTE: Sun Room to the right is optional and adds 221 S.F.
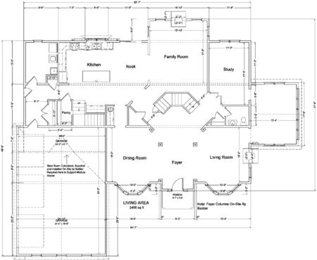
1st Floor
1st Floor
2nd Floor
2nd Floor

Additional Elevations


Rear Elevation

Left Elevation

Right Elevation

*Prices do not include Freight, Taxes and State Labels
Renderings are for illustration purposes only and may vary in precise detail from plans & specifications. Custom Modular Direct in house CAD design dimensions may vary from the manufacturers & will not be formalized until approved by manufacturers engineering department. ©2003 Custom Modular Direct . All Rights Reserved

Estate Homes

Resources