Leesburg- Modified

$317,400.00*
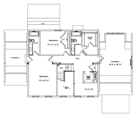
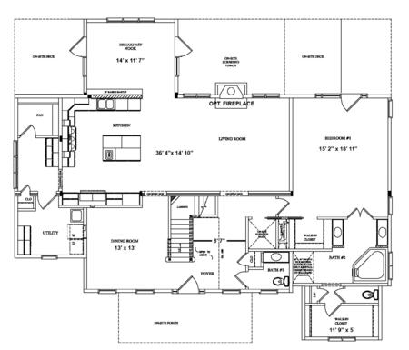
  • 3151 Sq. Ft.
  • 3 Bedrooms
  • 3.5 Bath
This home is designed to be built on pilings for the coast. It also includes an elevator chase in the design. Fireplace is optional. Optional transoms with 9' ceilings.
1st Floor
1st Floor
2nd Floor
2nd Floor

Additional Elevations


Left Elevation

Right Elevation

Rear Elevation

*Prices do not include Freight, Taxes and State Labels
Renderings are for illustration purposes only and may vary in precise detail from plans & specifications. Custom Modular Direct in house CAD design dimensions may vary from the manufacturers & will not be formalized until approved by manufacturers engineering department. ©2003 Custom Modular Direct . All Rights Reserved

Estate Homes

Resources