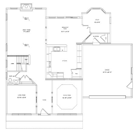
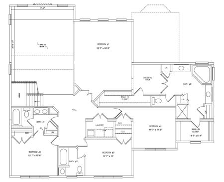
Foxwood
$389,600.00*
- 3626 Sq. Ft.
- 4 Bedrooms
- 3.5 Bath
*Prices do not include Freight, Taxes and State Labels
Renderings are for illustration purposes only and may vary in precise detail from plans & specifications.
Custom Modular Direct in house CAD design dimensions may vary from the manufacturers & will not be formalized until approved by manufacturers engineering department.
©2003 Custom Modular Direct . All Rights Reserved



Download Printable Data Sheet
