Pine Ridge II

Pine Ridge II
$311,000.00*
  • 1851 Sq. Ft.
  • 4 Bedrooms
  • 2.5 Bath
Note: Front Porch, Side Porch (connecting house to Garage) and deck would need to be supplied and installed on-site by the customer or a contractor of their choice. Shed dormer is optional.
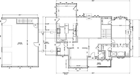
1st Floor
1st Floor
2nd Floor (Proposed)

*Prices do not include Freight, Taxes and State Labels
Renderings are for illustration purposes only and may vary in precise detail from plans & specifications. Custom Modular Direct in house CAD design dimensions may vary from the manufacturers & will not be formalized until approved by manufacturers engineering department. ©2003 Custom Modular Direct . All Rights Reserved

Craftsman Style

Resources