Baldwin II w. garage and luxury bath

Baldwin II w. garage and luxury bath
$195,700.00*
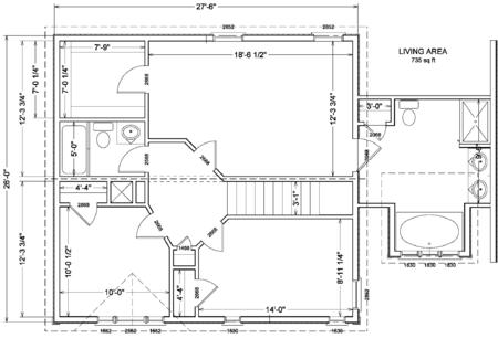
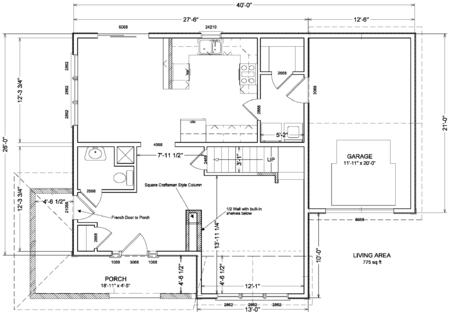
  • 1609 Sq. Ft.
  • 3 Bedrooms
  • 2.5 Bath
Garage Bonus area for luxury master bath and fixtures are included in this price. Bonus area to be finished on site. Dormer/Porch optional.
1st Floor
1st Floor
2nd Floor
2nd Floor

*Prices do not include Freight, Taxes and State Labels
Renderings are for illustration purposes only and may vary in precise detail from plans & specifications. Custom Modular Direct in house CAD design dimensions may vary from the manufacturers & will not be formalized until approved by manufacturers engineering department. ©2003 Custom Modular Direct . All Rights Reserved

Craftsman Style

Resources