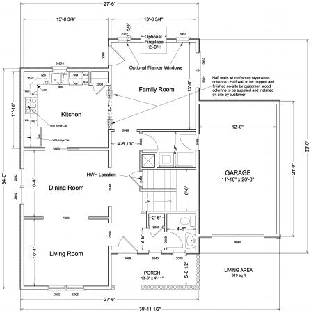
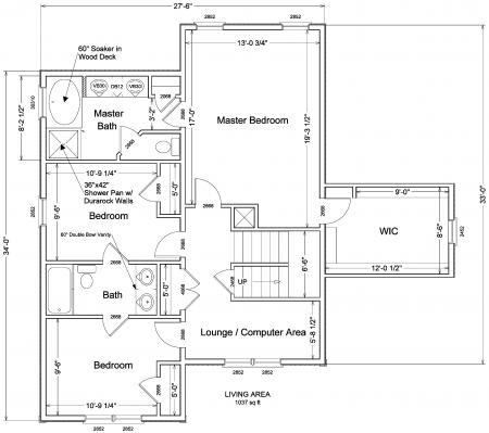
Belle Haven II
$214,500.00*
- 1876 Sq. Ft.
- 3 Bedrooms
- 2.5 Bath
optional 132 sq. ft. added when flex room is finished over the garage.
*Prices do not include Freight, Taxes and State Labels
Renderings are for illustration purposes only and may vary in precise detail from plans & specifications.
Custom Modular Direct in house CAD design dimensions may vary from the manufacturers & will not be formalized until approved by manufacturers engineering department.
©2003 Custom Modular Direct . All Rights Reserved



Download Printable Data Sheet
