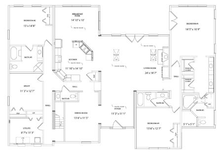
Kincaid

$298,300.00*
  • 3013 Sq. Ft.
  • 3 Bedrooms
  • 3.5 Bath
1st Floor
1st Floor

Additional Elevations


Rear Elevation

Left Elevation

Right Elevation

*Prices do not include Freight, Taxes and State Labels
Renderings are for illustration purposes only and may vary in precise detail from plans & specifications. Custom Modular Direct in house CAD design dimensions may vary from the manufacturers & will not be formalized until approved by manufacturers engineering department. ©2003 Custom Modular Direct . All Rights Reserved

Single Story Luxury

Resources