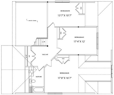
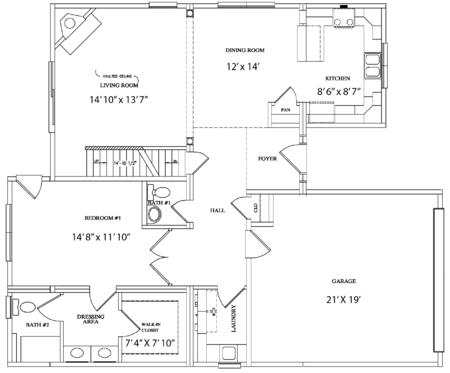
Meredith

$202,000.00*
  • 2311 Sq. Ft.
  • 4 Bedrooms
  • 2.5 Bath
Note: Fireplace is optional. Porch is optional. Square footage shown is when proposed second floor is finished on site.
1st Floor
1st Floor
2nd Floor
2nd Floor

*Prices do not include Freight, Taxes and State Labels
Renderings are for illustration purposes only and may vary in precise detail from plans & specifications. Custom Modular Direct in house CAD design dimensions may vary from the manufacturers & will not be formalized until approved by manufacturers engineering department. ©2003 Custom Modular Direct . All Rights Reserved

Cape Cods

Resources